> 2010

2011
In the first decade of the 21st century two developments had major impact on the urban organisation of De Uithof. One had been anticipated upon: the lightrail connection to the public transport terminal in the city centre ('Uithoflijn') but the other was a new private initiative.
With the ink of 'bestemmingsplan De Uithof' barely dry, this first private initiative introduced a development that didn't fit in the carefully formulated framework. A group of medical specialists working in the field of children's oncology had thought up the idea of a brand new centralised hospital and research centre focusing on all (rare) oncological diseases with children. Originally this initiative was called NKOC and Utrecht was considered as the most preferable location.

2012
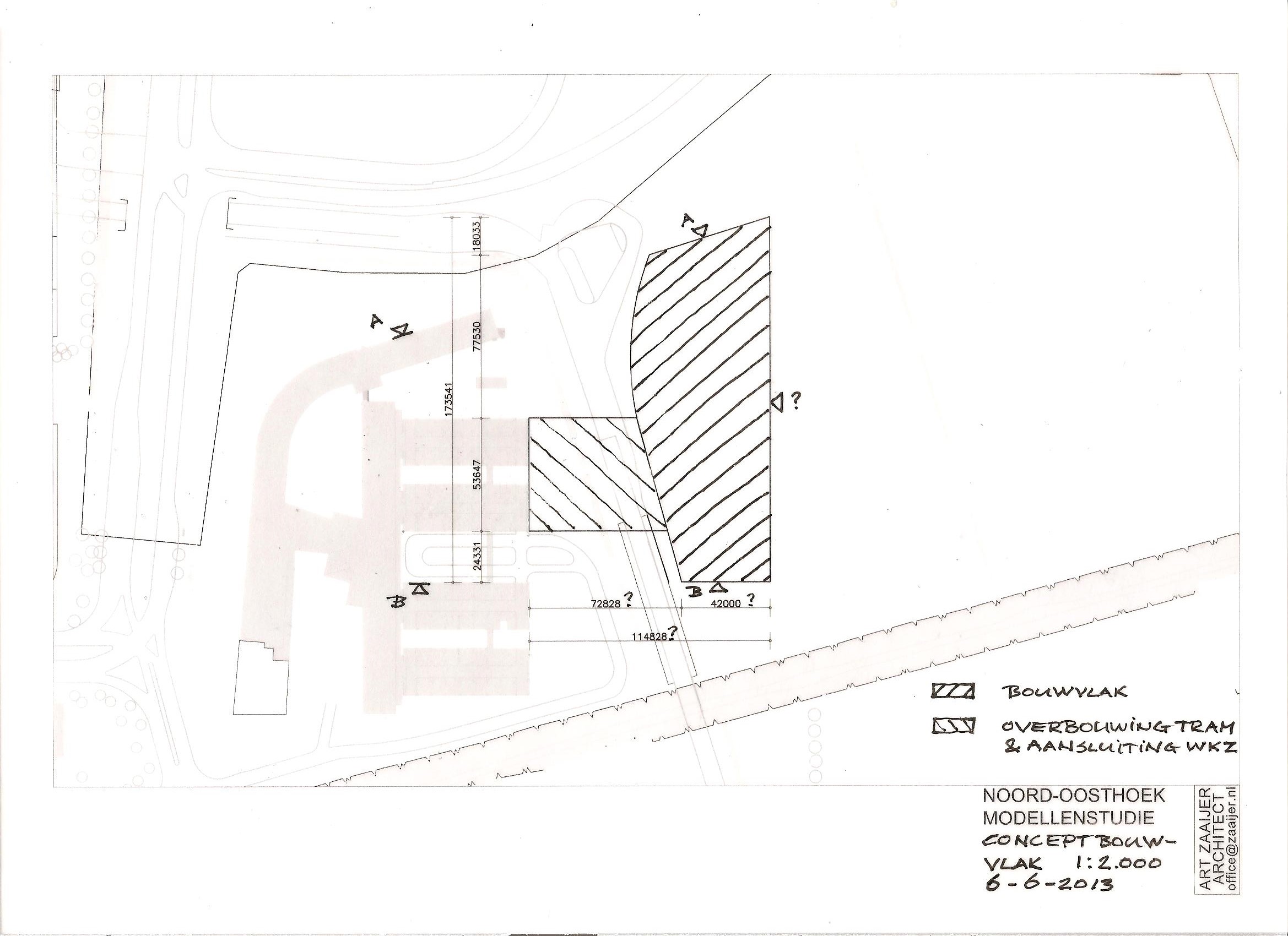
In July 2012 NKOC presented its ambitions for building a new hospital in Utrecht in a position paper ('startnotitie') ambitiously aiming at opening a new hospital in 2015. This hospital should be located as near as possible to the existing Wilhelmina Children's Hospital in order to be able to share expensive facilities like intensive care units. Also it was vital that patients in hospital beds could be moved between the hospitals without having to be taken outside. A number of studies were conducted to establish the amount of necessary deviation from the existing legal framework that had to be formalised. This proved to be a challenging adventure where the Province of Utrecht, the City of Utrecht and the University (as a landowner and principle coordinator of urban development in De Uithof) had to close ranks. The NKOC initiative was soon renamed into 'Prinses Máxima Centrum voor Kinderoncologie' (Princess Máxima Centre for Paediatric Oncology), the present name of the hospital (with consent from -now- Queen Máxima).

2013
On March 14th 2013 the City Council unanimously formulated the ambition to have the Princess Máxima Centre be built in De Uithof ('Motie 2013/MO14'). There was no upfront objection to allow building outside the formal urban framework and to support the Province in providing the necessary changes in this framework. To prepare the necessary steps a steering committee was formed with participation of the city, the university and the university hospital to draw up a binding map to be agreed upon and have the necessary documents produced.

2014
Uithoflijn:
In February 2014 the 'Ontwerp Bestemmingsplan HOV-baan De Uithof' (urban plan aimed at the integration of the public transport corridor in De Uithof) was published for consultation. The production of a dedicated 'bestemmingsplan', instead of utilising the reservation in 'Bestemmingsplan De Uithof' (2010), was due to the fact that the scope of the lightrail transcended the possibilities of the earlier plan. This was mainly caused by the fact that the track had to be moved for 15 meters to the east from the position in the original design near the University hospital to mitigate the effects of electrical magnetic interference. On July 17th 2014 the City Council formally approved 'Bestemmingsplan HOV-baan De Uithof'. Full text, regulations and reports (Dutch) can be found at the national site ruimtelijkeplannen.nl. For the map, see the 5th picture below.

Prinses Máxima Centre:
On March 10th 2014 the Provincial Council ('Provinciale Staten') partly changed the 'Provinciale Ruimtelijke Structuurvisie 2013-2028' (the legal framework in which areas are defined where building is allowed) to facilitate the new hospital. See the 3rd picture below. The year 2014 was used to produce a dedicated 'bestemmingsplan Prinses Màxima Centrum'.

2015
On September 4th 2015 Prinses Máxima Centrum received the permit (HZ_WABO-14-28937) to start building the hospital. The 'Bestemmingsplan' was approved upon by the City Council on the 3rd of September 2015 and became irrevocable by October 29th. Full text, regulations and reports (Dutch) can be found at the national site ruimtelijkeplannen.nl. This new urban plan allowed for a maximum of 49.500 gross square meters (car parking included) of hospital area to be built. This amount was not added to the development volume for De Uithof in total that had become available in the Urban Plan De Uithof (2010) which allowed for 261.000 sqm. In other words, the realisation of the Princess Máxima Centre formed a threat to further short term development of De Uithof. It was attempted to mitigate this risk bmo a legal arrangement between City and University, but there were not sufficient grounds for such a contract. Instead, an additional clause was added to the urban plan for PMC (section 4.4), stating that the hospital had to be included in the original 261.000 sqm, but that as soon as the university indicated (at any moment before 2020) that new initiatives were blocked by a shortage of sqm development potential, immediately a new urban plan were to be written. The year 2020 was chosen because at the time urban plans had a validity of ten years after which they had to be renewed anyway.

2018
Unfortunately the obligation for the ten year renewal was dropped in anticipation of the new legislature ('Omgevingswet') which was published on April 18th 2018 ('Staatsblad 2018/138). 

On June 5th 2018 Queen Máxima formally opened the Princess Máxima Centre.

On December 3rd 2018 De Uithof formally lost its historic name. The Municipal Council of Utrecht decided to officially change the name of the neighbourhood ‘De Uithof’ to the functional name ‘Utrecht Science Park’. This name was thought to be better suited to the (international) image of the area and it makes clear what type of area it is. Utrecht in the name makes clear that this Science Park has direct connection with the city and region of Utrecht. As a last remembrance to De Uithof, a poster board was erected with a brief reference to 60 years of De Uithof near former farm 'De Uithof' at the Toulouselaan.

===the end===

© Copyright 2021-2025 @ruut. All Rights Reserved.

Designed with Mobirise - See here